rodinný dům-typ 2

Rodinný dům Typ 2 je moderní zděný bungalov 4+kk, navržený s ohledem na praktičnost, komfort a klidné rodinné bydlení.

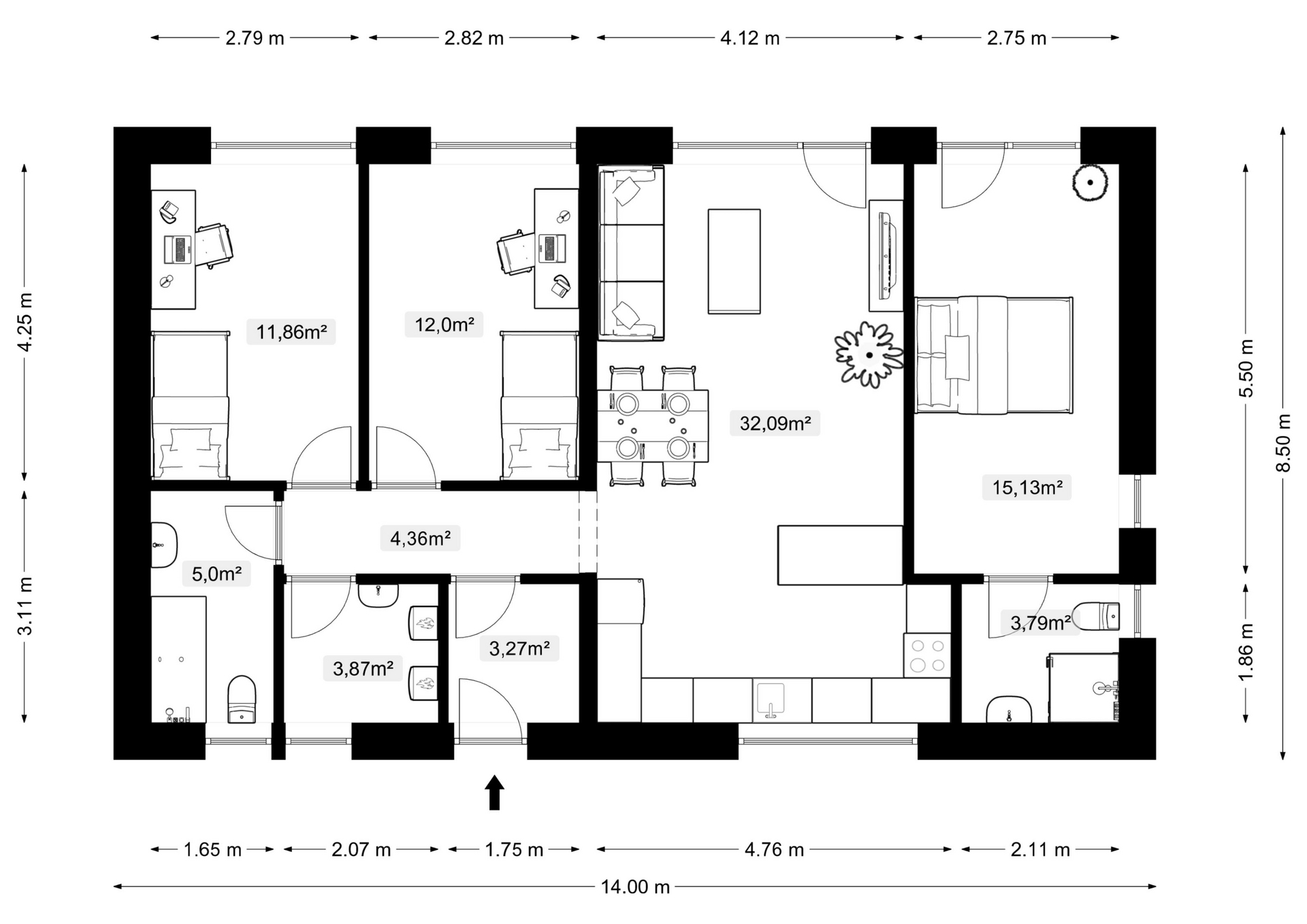
Užitná plocha domu činí 91 m². Dominantou je slunný obývací prostor s kuchyní a jídelnou, který propojuje rodinný život i relaxaci. Výhodou jsou dvě koupelny – s vanou i sprchovým koutem – a také samostatná technická místnost.

Před domem je připraveno parkovací stání pro dvě auta, což zajišťuje pohodlí i pro větší rodinu.

Dům se nachází na pozemcích o výměře 770–790 m², které nabízejí příjemné soukromí a dostatek prostoru pro zahradu. Ať už plánujete odpočinek na terase, letní grilování nebo vlastní záhonky, vše zde najdete na dosah.

PŮDORYS

Vysoká kvalita výstavby a všech instalovaných technologií je pro nás samozřejmostí.

Fotogalerie

I takto může vypadat váš nový domov.

už víte

kde budete bydlet?

Kontakt

Máte jakékoliv dotazy týkající se projektu, domů, prodeje. Kontaktujte Tomáše Pitříka nebo Veroniku Karáskovou.

Potřebujete vyřešit hypotéku, sjednat výhodnou úrokovou sazbu či pojistit dům a domácnost. Můžete se obrátit na finanční poradkyni Barbaru Zlou

Ing. Tomáš Pitřík

realitní makléř

Veronika Karásková

realitní makléřka

Mgr. Barbara Zlá

hypoteční specialista

pošlete vzkaz

    developer projektu

    Za projektem stojí společnost 1. ObchodníCZ spol. s r.o., rodinná firma, která staví na osobním přístupu a důrazu na kvalitu. Nejde nám o rozsáhlé developerské komplexy, kde se ztrácí lidský rozměr, ale o poctivou práci a projekty, za kterými si osobně stojíme. Díky tomu dokážeme věnovat maximální péči každému detailu a vytvářet místa, kde se budete opravdu cítit doma.

    Daniel Zlý

    1. Obchodní.CZ spol. s r.o.
    Pod Hůrkama 487
    Staré Město 738 01

    IČO 27784410