
Praktické
Dvojdomy
V lokalitě Malé Nošovice nabízíme moderní bydlení nejen v podobě přízemních rodinných domů, ale také ve čtyřech dvojdomech o dispozici 4+kk. Každá bytová jednotka má užitnou plochu 98 m² a nabízí komfort srovnatelný s plnohodnotným rodinným domem.
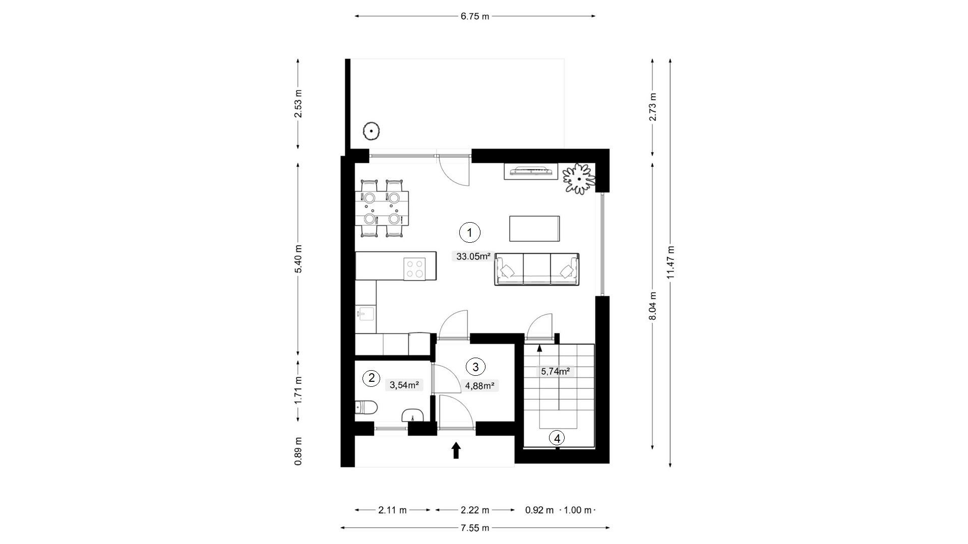
V přízemí se nachází prostorný a světlý obývací pokoj s kuchyňí, který tvoří srdce celého domu a je ideálním místem pro rodinný život i společné chvíle s přáteli. Samozřejmostí je také technická místnost, která poskytuje potřebné zázemí pro domácnost. V patře se nacházejí tři samostatné pokoje a koupelna vybavená jak vanou, tak sprchovým koutem.
Každá bytová jednotka má vlastní soukromou terasu a zahrádku, které poskytují ideální prostor pro relaxaci, grilování, hry s dětmi nebo pěstování rostlin. Před domem je k dispozici vlastní parkovací stání pro dvě vozidla.
Dvojdomy v Malých Nošovicích představují ideální volbu pro rodiny, které hledají kvalitní a moderní bydlení v klidném prostředí s dobrou dostupností do Frýdku-Místku i širšího okolí. Výstavba klade důraz na funkční dispozice, soukromí, nízké provozní náklady a příjemnou atmosféru domova.
PŮDORYS
Vysoká kvalita výstavby a všech instalovaných technologií je pro nás samozřejmostí.
Fotogalerie
I takto může vypadat váš nový domov.